Снос и восстановление памятника лётчикам штурмовика Ил-2
-
Олег Ермолаев
- Бывалый
- Сообщения: 702
- Зарегистрирован: 13 фев 2011 01:25
- Откуда: СНТ Белоостровец
- x 21
- краевед эксперт
- Эксперт
- Сообщения: 1738
- Зарегистрирован: 26 янв 2008 23:42
- Откуда: СПб, пос. Белоостров
- x 8
Прикрепил вариант установки плиты вплотную к фундаменту старой постройки и конструкцию плиты с добавлением верхнего выступа для установки обелиска.
Это позволит увеличить площадь площадки со стороны лестницы, а также " развяжет" верхнюю часть плиты относительно верхней поверхности старого фундамента. Камни фундамента тоже будут перекладываться и добавляться. Поэтому размер по вертикали 200мм от верха фундамента можно выполнят с большим допуском.
Также прикрепил результаты обмеров земельного участка.
Это позволит увеличить площадь площадки со стороны лестницы, а также " развяжет" верхнюю часть плиты относительно верхней поверхности старого фундамента. Камни фундамента тоже будут перекладываться и добавляться. Поэтому размер по вертикали 200мм от верха фундамента можно выполнят с большим допуском.
Также прикрепил результаты обмеров земельного участка.
Последний раз редактировалось краевед эксперт 06 сен 2012 11:43, всего редактировалось 1 раз.
0 x
краевед эксперт
- краевед эксперт
- Эксперт
- Сообщения: 1738
- Зарегистрирован: 26 янв 2008 23:42
- Откуда: СПб, пос. Белоостров
- x 8
Сегодня 6 сентября 2012г. Сергей Викторович встречается с администрацией Юкков по различным вопросам установки мемориала.
Я обращаюсь, посредством этого сообщения на форуме, от инициативной группы к администрации Юкков с просьбой выдать Сергею Викторовичу для реставрации памятную доску, снятую с разрушенного 5 декабря 2003г. памятника регионального значения, с последующей установкой ее на вновь изготовленный обелиск.
Памятная доска является неотъемлемой исторической частью разрушенного обелиска и была изготовлена и установлена в августе 1968г.
Краевед Курортного р-на, автор 40 статей,
опубликованных в различных СМИ
Логунцов М.А.
06.09.2012
Я обращаюсь, посредством этого сообщения на форуме, от инициативной группы к администрации Юкков с просьбой выдать Сергею Викторовичу для реставрации памятную доску, снятую с разрушенного 5 декабря 2003г. памятника регионального значения, с последующей установкой ее на вновь изготовленный обелиск.
Памятная доска является неотъемлемой исторической частью разрушенного обелиска и была изготовлена и установлена в августе 1968г.
Краевед Курортного р-на, автор 40 статей,
опубликованных в различных СМИ
Логунцов М.А.
06.09.2012
Последний раз редактировалось краевед эксперт 07 сен 2012 09:40, всего редактировалось 2 раза.
0 x
краевед эксперт
- краевед эксперт
- Эксперт
- Сообщения: 1738
- Зарегистрирован: 26 янв 2008 23:42
- Откуда: СПб, пос. Белоостров
- x 8
Вчера 5 сентября 2012г. вместе с "БОМЖом" в миру Олегом произвели обмер земельного участка для мемориала. Погода была хорошая. Светило солнце. И, только в конце замеров, пришла небольшая тучка с дождем и мы вынуждены были спрятаться под березу, стоящую рядом с будущим мемориалом.
Ниже прикрепил фото при замерах 5 сентября.
Ниже прикрепил фото при замерах 5 сентября.
- Вложения
0 x
краевед эксперт
- Aqua$erg
- Хозяин
- Сообщения: 9777
- Зарегистрирован: 08 авг 2006 20:46
- Откуда: СНТ "Полиграфист"
- x 804
- Контактная информация:
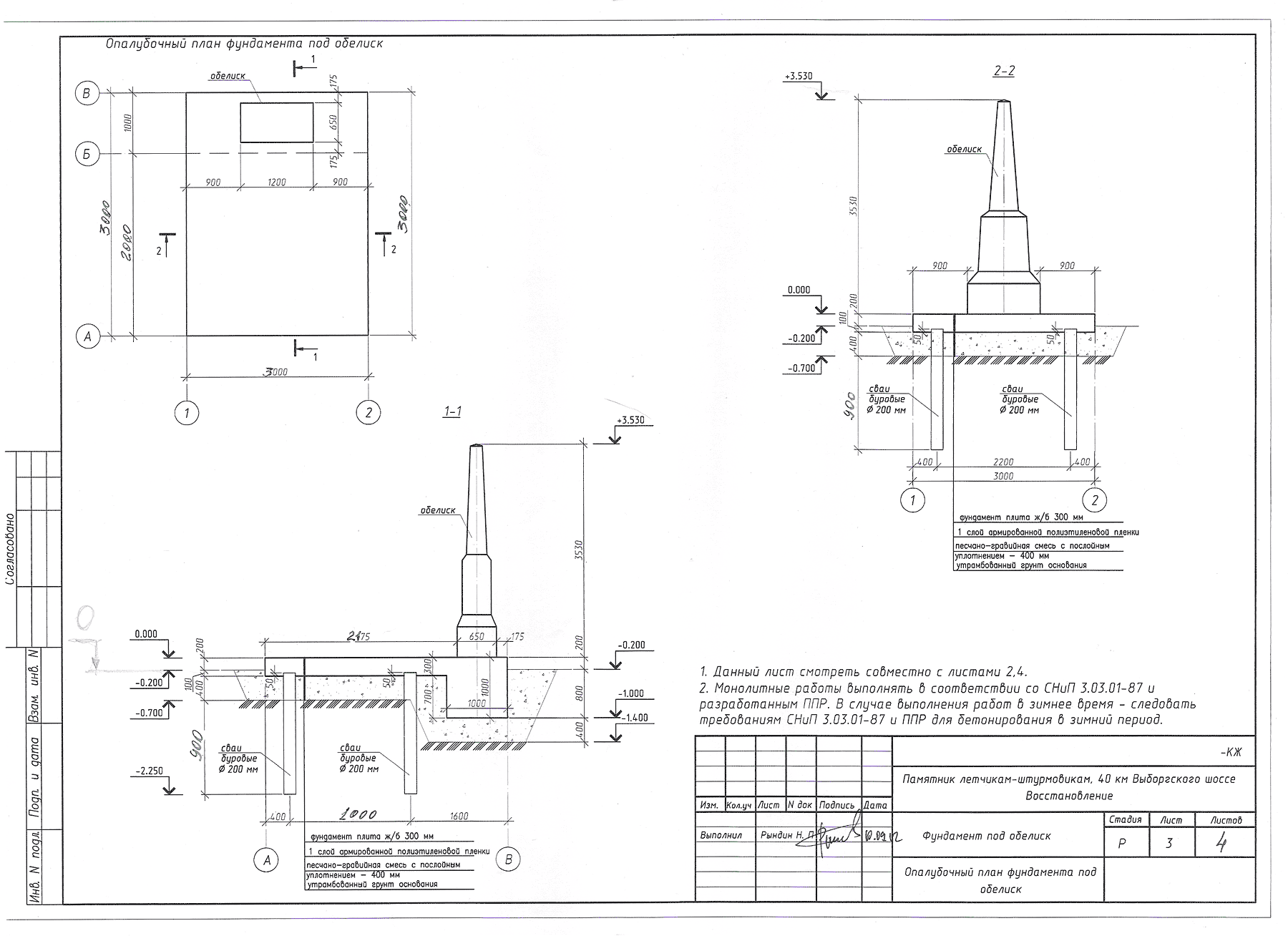
На последнем "техническом собрании" 04.09.2012 таки пришли к конечной концепции в конструкции фундамента. По этим результатам недавно был составлен некий документ, регламентирующий конструкцию и материалы. Прошу обратить внимание, что это не полноценный проект, а просто рабочая документация. Но она оформлена в должном виде, и по ней и возводится фундамент. Некоторые моменты всё-таки корректируются, но основная техническая составляющая представлена верно.
Кстати, сегодня пробурили и залили 5 ж/б свай под основание (ждём фотоотчёта от Олега). На днях, при благоприятной погоде будет проведена оснастка опалубки, засыпка и утрамбовка подсыпки, и в ближайшие дни зальётся сама плита.
Кстати, сегодня пробурили и залили 5 ж/б свай под основание (ждём фотоотчёта от Олега). На днях, при благоприятной погоде будет проведена оснастка опалубки, засыпка и утрамбовка подсыпки, и в ближайшие дни зальётся сама плита.
0 x
- краевед эксперт
- Эксперт
- Сообщения: 1738
- Зарегистрирован: 26 янв 2008 23:42
- Откуда: СПб, пос. Белоостров
- x 8
- краевед эксперт
- Эксперт
- Сообщения: 1738
- Зарегистрирован: 26 янв 2008 23:42
- Откуда: СПб, пос. Белоостров
- x 8
Вчера в архиве нашел фото воздушного стрелка сержанта Темнова и др. фото и документы.
Заказал копии.
С 2003г. я не мог понять, как могло произойти перезахоронение, и при этом спокойно разрушили памятник, находящийся и сегодня под охраной государства. Оказывается, что еще до переноса косточек погибших летчиков, шла переписка о переносе памятника.
В связи с тем, что найдено фото Темнова у меня появилось предложение установить его, а также фото Балакана на памятнике.
Также предлагаю под плитой сделать ж/б нишу для возможного перезахоронения косточек погибших летчиков из Юкков.
Считаю, что исторически это будет правильно.
О перезахоронении сейчас не настаиваю. Время покажет.
Считаю, что на обелиск нужно установить копию самолетика, а оригинал поместить в музей.
Заказал копии.
С 2003г. я не мог понять, как могло произойти перезахоронение, и при этом спокойно разрушили памятник, находящийся и сегодня под охраной государства. Оказывается, что еще до переноса косточек погибших летчиков, шла переписка о переносе памятника.
В связи с тем, что найдено фото Темнова у меня появилось предложение установить его, а также фото Балакана на памятнике.
Также предлагаю под плитой сделать ж/б нишу для возможного перезахоронения косточек погибших летчиков из Юкков.
Считаю, что исторически это будет правильно.
О перезахоронении сейчас не настаиваю. Время покажет.
Считаю, что на обелиск нужно установить копию самолетика, а оригинал поместить в музей.
0 x
краевед эксперт
- Aqua$erg
- Хозяин
- Сообщения: 9777
- Зарегистрирован: 08 авг 2006 20:46
- Откуда: СНТ "Полиграфист"
- x 804
- Контактная информация:
Хуже от неё не будет, а пробурили и залили, вероятно, исходя из того, что кубометр бесплатного бетона нужно было куда-то распределить. Вероятно, из этого и выросла пятая свая. К тому же, она поддерживает центр переднего края плиты (по заднему краю поддержку выполняет целиковый метровый "зуб").raevsku писал(а):Недопонял, откеда всплыла пятая свая? Зачем?
Чертёж и просчёты сделаны абсолютно бесплатно, благодаря ходатайствованию нашего организатора - С.В.Пучкова, исходя из обсуждения технических спецов, "вызванных разными сторонами"Sancho писал(а):прорисовано хорошо и должно получиться надежно.
Это просто великолепно! Спасибо Вам огромное!краевед эксперт писал(а):Вчера в архиве нашел фото воздушного стрелка сержанта Темнова и др. фото и документы. Заказал копии.
Размещение фотографий на стеле уже неоднократно обсуждалось. Я лично не против, но общественность утверждает, что это абсолютно не стыкуется с дизайном стелы. В итоге, было вынесено довольно интересное и логичное предложение - на территории мемориала установить информационную доску с расширенной информацией о лётчиках и о памятнике. На той доске и разместить фотографии героев.краевед эксперт писал(а):В связи с тем, что найдено фото Темнова у меня появилось предложение установить его, а также фото Балакана на памятнике
краевед эксперт писал(а):Также предлагаю под плитой сделать ж/б нишу для возможного перезахоронения косточек погибших летчиков из Юкков
Вот видите, какие мнения... Даже если в будущем "время покажет", что перезахоронить нужно и можно, то сейчас технически архисложно городить огород в плите. Нет ничего дурного или неправильного в том, чтобы перезахоронить прах на территории мемориала (у нас в распоряжении целая сотка), но НЕ под плитой. Возьмите для примера любую братскую могилу - тот же Сад Мира.raevsku писал(а):Это варварство и издевательство! Таскать прах погибших с места на место
Ну вот, здрасьте, приехали... Кто, когда и как будет делать копию? Оригинал уже переварен так, чтобы смотрел в указанном Вами же направлении. Всё обсуждение установки, крепления и переварки происходило в Вашем же присутствии, и тут вдруг - идея! А буквально через неделю (дай Бог!) можно будет привозить и устанавливать стелу. И самолётик.краевед эксперт писал(а):Считаю, что на обелиск нужно установить копию самолетика, а оригинал поместить в музей
0 x
- Aqua$erg
- Хозяин
- Сообщения: 9777
- Зарегистрирован: 08 авг 2006 20:46
- Откуда: СНТ "Полиграфист"
- x 804
- Контактная информация:
На всякий случай хочу напомнить ситуацию по материалам:Aqua$erg писал(а):кубометр бесплатного бетона нужно было куда-то распределить
Доски для опалубки: бесплатные, оставшиеся после строительства часовни в СНТ "Белоостров". Доставка-разгрузка - также бесплатным КамАЗом;
Песок: бесплатный, по договорённости с хозяевами Калеловского карьера. Они готовы в благотворительных целях поставить вроде бы, до 70 кубов. Плюс одна машина от Сертоловского Совета Ветранов;
Арматура: бесплатная, по договорённости с Сертоловским КЖБИ. 12мм хлысты, общей длиной около 260м;
Бетон: бесплатный. Идут разговоры с "Метробетоном", но оттуда пока одни обещания, и пока суть да дело, бетонный з-д Сертолово ТД "Гранит-логистик" выделил на благотворительной основе порядка 7 кубов. Из них 1 куб сумели организовать отдельным завозом, для заливки свай. Приехал миксер и привёз 1 куб!
6-метровая пластиковая труба в кювет: бесплатно, от СНТ "Белоостров";
Геотекстиль: не берусь утверждать, но по-моему, бесплатный;
Щебень: бесплатно 1 машина от Сертоловского Совета ветеранов;
Все эти материалы получены бесплатно, благодаря содействию местных муниципалитетов, Сертоловскому совету ветеранов и лично нашему организатору - С.В.Пучкову, который смог договориться и со всеми общественными организациями и с непосредственными поставщиками, выпрашивая и выбивая (по ситуации) из них максимум возможного. Не хотелось бы дифирамбов, но без его кипучей активности мы бы так и писали на форуме о необходимости восстановить памятник, слали письма Президенту, а дело стояло.
P.S. Все материалы и инструменты есть, рабочие - тоже. Всё - на благотворительной основе. На данный момент не хватает только щебня. 1 машина уже выделена и высыпана на площадку, но её хватит на подсыпку песчано-щебневой подушки под плиту, и немного останется - присыпать трубу в кювете. Но для отсыпки и выравнивания склона, для оборудования лестничного марша, для мощения территории мемориала этого абсолютно недостаточно. Просим всех помочь в этом вопросе.
0 x
Енто никак не согласуется с приведенными выше чертежами. Дополнительная свая посажена со стороны плиты, обращенной к памятнику (согласно чертежам), а с противоположной стороны - только две сваи, и никакого "зуба".Aqua$erg писал(а):Вероятно, из этого и выросла пятая свая. К тому же, она поддерживает центр переднего края плиты (по заднему краю поддержку выполняет целиковый метровый "зуб").
А где РД на енто дело???Aqua$erg писал(а):Но для отсыпки и выравнивания склона, для оборудования лестничного марша, для мощения территории мемориала этого абсолютно недостаточно
0 x
"вроде говоришь, да все не про то..." ©
- Aqua$erg
- Хозяин
- Сообщения: 9777
- Зарегистрирован: 08 авг 2006 20:46
- Откуда: СНТ "Полиграфист"
- x 804
- Контактная информация:
Виноват, простите дядьку. но ведь точно - не повредит. И поможет удерживать всю конструкцию от оползания и наклонов.raevsku писал(а):Енто никак не согласуется с приведенными выше чертежами. Дополнительная свая посажена со стороны плиты, обращенной к памятнику (согласно чертежам), а с противоположной стороны - только две сваи, и никакого "зуба".Aqua$erg писал(а):Вероятно, из этого и выросла пятая свая. К тому же, она поддерживает центр переднего края плиты (по заднему краю поддержку выполняет целиковый метровый "зуб").
Это - в будущем. И никакой РД пока на это нет. В условиях жесткой экономии имеющихся на данный момент средств (народных, собранных!), погодных условий и надвигающейся зимы, наша главная и злободневная задача - отлить плиту и установить на неё стелу. Остальное - дело наживное. Там и РД и Проект можно составлять, исходя из status quo.raevsku писал(а):А где РД на енто дело???Aqua$erg писал(а):Но для отсыпки и выравнивания склона, для оборудования лестничного марша, для мощения территории мемориала этого абсолютно недостаточно
На данный момент, пока я пишу это, на площадке работают люди. Откапываются, кладут геотекстиль, засыпают щебень с песком, трамбуют вибромашиной, готовят под укладку/вязку арматуры, которую должны доставить завтра, под опалубку...
И всё бесплатно, за совесть. Такие вот альтруисты
0 x
- Aqua$erg
- Хозяин
- Сообщения: 9777
- Зарегистрирован: 08 авг 2006 20:46
- Откуда: СНТ "Полиграфист"
- x 804
- Контактная информация:
Будущее бывает разным: далёким и близким. В данном случае, вполне реально до наступления серьёзной зимы успеть соорудить лестницу к мемориалу. Засыпать канаву (трубу в канаве). Выровнять склон. Почему нет?raevsku писал(а):зачем просить лишний щебень сейчас? Чтобы валялся у памятника, и чтобы его кто-нибудь утащил?
На данный момент фундамент возводится только по РД. Проект - был и есть, но мы его сильно изменили. Тот проект был согласован с архитектором района, с юкковской администрацией, но... Администрация тогда сказала, что бюджетных средств хватило только на разработку проекта. Проект - не главное в таком деле, когда работа идёт своими силами. Вот качественная РД - другое дело. А "проекты" нужны только бюрократам, и то - если строительство коснётся их средств. А от них пока - только обещания.raevsku писал(а):Ежли уже есть РД, на кой составлять проект, недопонял
дойдёт до этого - смастрячим РД по маршу и по ландшафту, и по ней будем работать. Впрочем, даст Бог, это доделает вышеупомянутая Администрацияraevsku писал(а):РД лучше иметь ДО начала строительства лестничного марша, а не после
0 x
Тогда нужна РД, для того, чтобы было легче строить, имхо! Не после, а до!Aqua$erg писал(а):В данном случае, вполне реально до наступления серьёзной зимы успеть соорудить лестницу к мемориалу.
Ну так, проект лишь должен быть согласован в установленном порядке, и все. А то, что администрация отказалась финансировать строительство, это - другой вопрос.Aqua$erg писал(а):Тот проект был согласован с архитектором района, с юкковской администрацией, но... Администрация тогда сказала, что бюджетных средств хватило только на разработку проекта.
Ежли своими силами, то можно строить и вообще без документации_чертежей. Ежли строишь на своем участке, дачном, хибару какую. То, что она рухнет потом тебе на башку - твои проблемы.Aqua$erg писал(а):Проект - не главное в таком деле, когда работа идёт своими силами. Вот качественная РД - другое дело.
Ничего подобного, РД и проект (его часть) должны быть переданы генподрядчику ДО начала строительства, и никак иначе. А по другому получается Нью "Кировский стадион", который начали строить с подачи Вальки даж без проекта. В результате имеем Щас незавершенное строительство, очередной тендер по смене генподрядчика и в перспективе, согласно смете, самый дорогой стадион в мире!!! Между прочим, за городское бабло. Напомню, что тама должны бали гонять мячик, на новом стадионе, в 2009 году.Aqua$erg писал(а):Вот качественная РД - другое дело. А "проекты" нужны только бюрократам, и то - если строительство коснётся их средств.
воо енто - правильный подход, имхо, "работать по РД".Aqua$erg писал(а):дойдёт до этого - смастрячим РД по маршу и по ландшафту, и по ней будем работать.
0 x
"вроде говоришь, да все не про то..." ©
- краевед эксперт
- Эксперт
- Сообщения: 1738
- Зарегистрирован: 26 янв 2008 23:42
- Откуда: СПб, пос. Белоостров
- x 8
По поводу ориентации самолетика.Aqua$erg писал(а):Ну вот, здрасьте, приехали... Кто, когда и как будет делать копию? Оригинал уже переварен так, чтобы смотрел в указанном Вами же направлении. Всё обсуждение установки, крепления и переварки происходило в Вашем же присутствии, и тут вдруг - идея! А буквально через неделю (дай Бог!) можно будет привозить и устанавливать стелу. И самолётик.краевед эксперт писал(а):Считаю, что на обелиск нужно установить копию самолетика, а оригинал поместить в музей
Самолетик в переваренном виде летит туда, куда и летел. А вот обелиск действительно повернут.
А как будет выглядеть обелиск в случае кражи самолетика?
Сканирование самолетика нужно делать обязательно.
0 x
краевед эксперт
-
Олег Ермолаев
- Бывалый
- Сообщения: 702
- Зарегистрирован: 13 фев 2011 01:25
- Откуда: СНТ Белоостровец
- x 21





